Renovated Freestanding Warehouse In Prime Redcliffe Location
56 Klingner Rd, REDCLIFFE QLD 4020
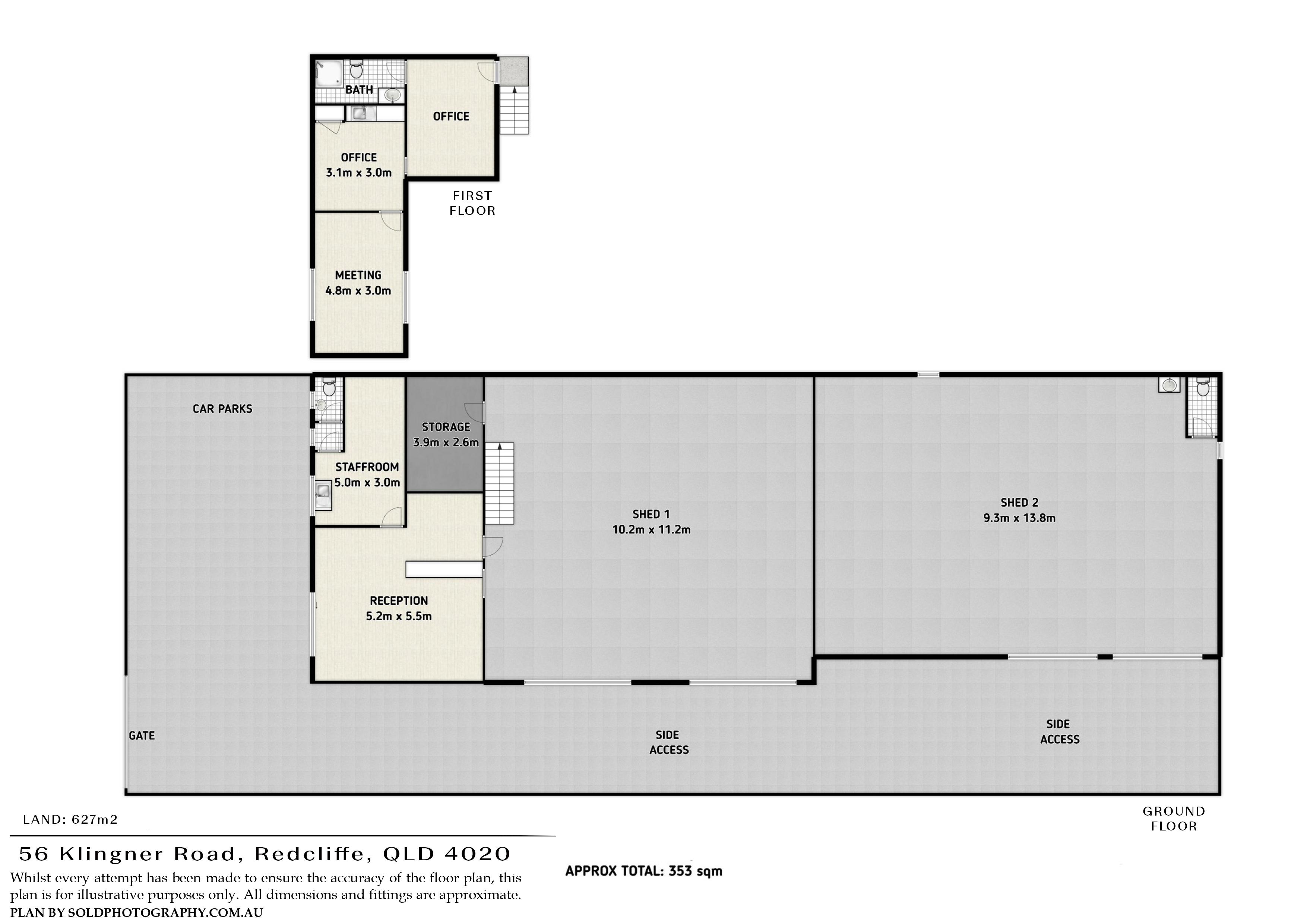
Description
– 323 m2* freestanding warehouse + office on 627 m2* allotment
– Freshly renovated
– Shed 1: 115 m2*
– Shed 2: 129 m2*
– Glass door entry
– Large reception/waiting area
– 3 x mezzanine offices
– Meals room/kitchenette
– Storage room
– Internal toilets x 3 plus 1 x shower
– Great natural lighting
– 3 phase power
– 4 x roller door access (incl 2 x high clearance)
– Strong signage provisions
– On site parking
– Fully fenced & gated
– Prime position on busy main road in Redcliffe
– Short distance to waterfront
Call The Commercial Guys today to book your inspection or for further information today.
* Approximation only
** Approval status of mezzanine unknown.
^Unless otherwise stated, the price/property may be subject to GST and/or estimated outgoings.
Disclaimer: Every effort has been made to ensure the accuracy of these details, but no warranty is provided by the vendor or the agent regarding their accuracy. Interested parties should not rely on these details as representations of fact and must verify them through their own inspection or other means

















